Independent technical support for residential architectural practices
Planning to building regulations drawing packages delivered efficiently, accurately, and with minimal input required.
Chartered Architectural Technologist with over 30 years’ experience in UK residential projects, 20+ years running UK based CIAT Chartered Practice
Email me.
Services
I support architectural practices with the preparation of clear, compliant and buildable building regulations drawing packages for residential projects.
Building regulations drawing packages
Planning drawing packages
Technical detailing
Residential extensions and one-off houses
DWG-based delivery using AutoCAD LT
How I work
Fixed fee per project
Minimal supervision required
Can work behind the scenes
Clear, coordinated drawing sets
Reliable turnaround aligned with project programmes.
Discreet, confidential support for practices
I work independently to deliver complete packages, allowing you to focus on design and client-facing work.
Experience
I have over 20 years’ experience running my own CIAT Chartered Practice delivering residential projects across the UK, including extensions, refurbishments, and one-off houses.
Alongside my own work, I regularly support other practices with technical delivery, particularly at building regulations stage.
Typical Projects
Residential alterations and extensions
Loft conversions
Internal alterations and refurbishment
Barn conversions
One-off houses
Small residential developments
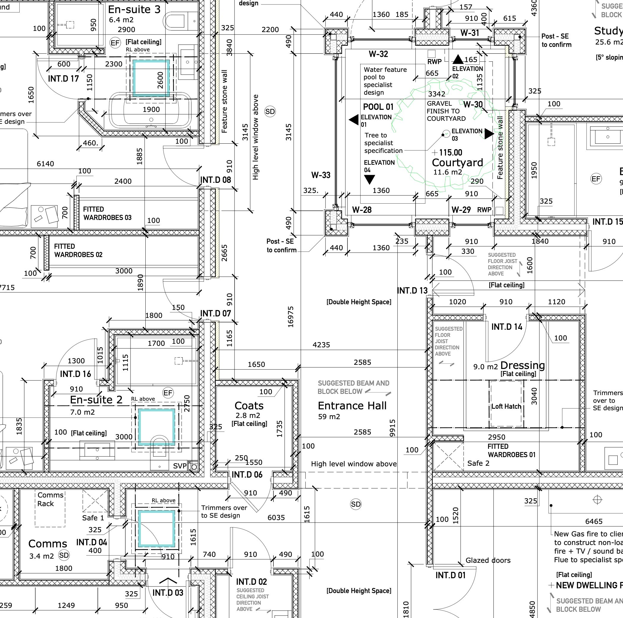
Gallery
Typical drawing packages include building regulations level site plans, floor plans, sections and elevations + relevant specification notes.
All examples shown are from my own projects. I do not display work prepared for other practices, which is always treated as confidential.
I am experienced in delivering projects of all sizes, from small domestic works through to larger residential schemes.
Further examples of relevant project types can be provided where helpful.
01 Site Plan : Alterations and Extensions
02 Floor Plan : Alterations and Extensions
03 Roof Plan : New Dwelling
04 Sections : Alterations and Extensions
05 Elevations: Alterations and Extensions
06 Floor Plan : New Dwelling
07 Elevations : Loft Conversion + Extension
08 Site Plan : New Dwelling
09 Sections : New Dwelling
10 Elevations : New Dwelling
11 Sections : New Dwelling
12 Floor Plan : New Dwelling
Commercial
Fixed fees agreed in advance
Work undertaken on a per-project basis
Fully insured (professional indemnity and public liability)
Operates via VAT-registered limited company
Contact
If you’re looking for reliable support on residential projects, feel free to get in touch to discuss current or upcoming work.
I regularly work in a discreet, behind-the-scenes capacity, and all enquiries are treated in strict confidence.
Email: marcus@marcushamtechnical.co.uk
Tel: 07764 254 966